
画像が見えにくい場合は個別に画像を印刷してください。https://roominkoko.jp/fudo/r106/
- 賃料
- 3万円
- アパート
- 間取
- 1R
3万円
1R
| 所在地 | 北海道稚内市萩見5丁目 オレンジコーポⅡ |
|---|---|
| 交通 |
| 築年月 | 平成1年11月 | 新築/中古 | |
|---|---|---|---|
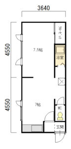
| 面積 | 32.4m² | 計測方式 | |
| バルコニー | 向き | 西 | |
| 建物階数 | 地上2階 地下0階 | 部屋階数 | 2階 |
| 建物構造 | 木造 | ||
| 間取内容 |
15畳 |
||
| 駐車場 | 無 | 取引態様 | 仲介 |
| 引渡/入居時期 | 即時 | 現況 | |
| 周辺環境 | |||
| 設備・条件 | ペット不可 ガスコンロ 給湯 バス専用 トイレ専用 バス・トイレ別 石油暖房 室内洗濯機置き場 BSアンテナ 地デジ対応 プロパンガス 公営水道 排水下水 | ||
| 物件番号 | R106 | ||
浴室・シャワー・ガス給湯・水洗・FF灯油ストーブ・収納
* 駐車場無し
* 町内会費別途個人支払
* 冷蔵庫・TV・洗濯機・ガスコンロ・収納棚・ベッド(マットレス無し)付けることできます。
* 家財賠償保険別途加入
* 退去時清掃料別途(退去時精算)
Loading...
※物件掲載内容と現況に相違がある場合は現況を優先と致します。
問合せ先
株式会社ルーミン・ココ
〒097-0017 北海道稚内市栄5丁目7番5号 コーポ サンロード1F
TEL 0162-32-8877 FAX 0162-32-8878
宅建免許番号: 北海道知事 宗谷(4)第53号
E-Mail:roomin-koko@violet.plala.or.jp










![[賃貸]アパート・栄1丁目 [賃貸]アパート・栄1丁目](https://roominkoko.jp/images/seasidehills-150x150.jpg)
![[賃貸]アパート・栄5丁目・スーパー近郊 [賃貸]アパート・栄5丁目・スーパー近郊](https://roominkoko.jp/images/kooposanroodo-150x150.jpg)

